Italiano
Serietà e professionalità dal 1999
Passione Correttezza Professionalità
Specializzati nel vendere case. La migliore scelta a cui affidare la vendita del tuo immobile.

Appartamento quadrilocale con ingresso indipendente e corte esclusiva!

189.000 €
297 m2
3 Camere
2 Bagni
Codice
010/k
Città
Adro
Categoria
4 o più locali
Locali
4
Mq Giardino
480
Mq Balcone
11
Piano
1
Classe energetica
G
Stato Immobile
Da Ristrutturare
Grado
Medio
Posizione
Centro
Panorama
Vista Giardino
Orientamento
Sud Est
Lati Liberi
2
Giardino
Privato
Arredi
Non Arredato
Tipo Soggiorno
Soggiorno
Tipo Cucina
Abitabile
Riscaldamento
Autonomo
Tipo Riscaldam.
Caldaia
Tipo Impianto
Radiatori
Fonte Energetica
Metano
Acqua Calda
Autonoma
Raffrescamento
No
Infissi
Legno
Serramenti
Da Sostituire
Persiana
Tapparella Legno
Pavim. Giorno
Ceramica
Pavim. Notte
Moquette
Pavim. Cucina
Ceramica
Pavim. Bagno
Ceramica
Se stai cercando un appartamento con ingresso indipendente e con giardino privato, questa soluzione potrebbe fare al caso tuo!

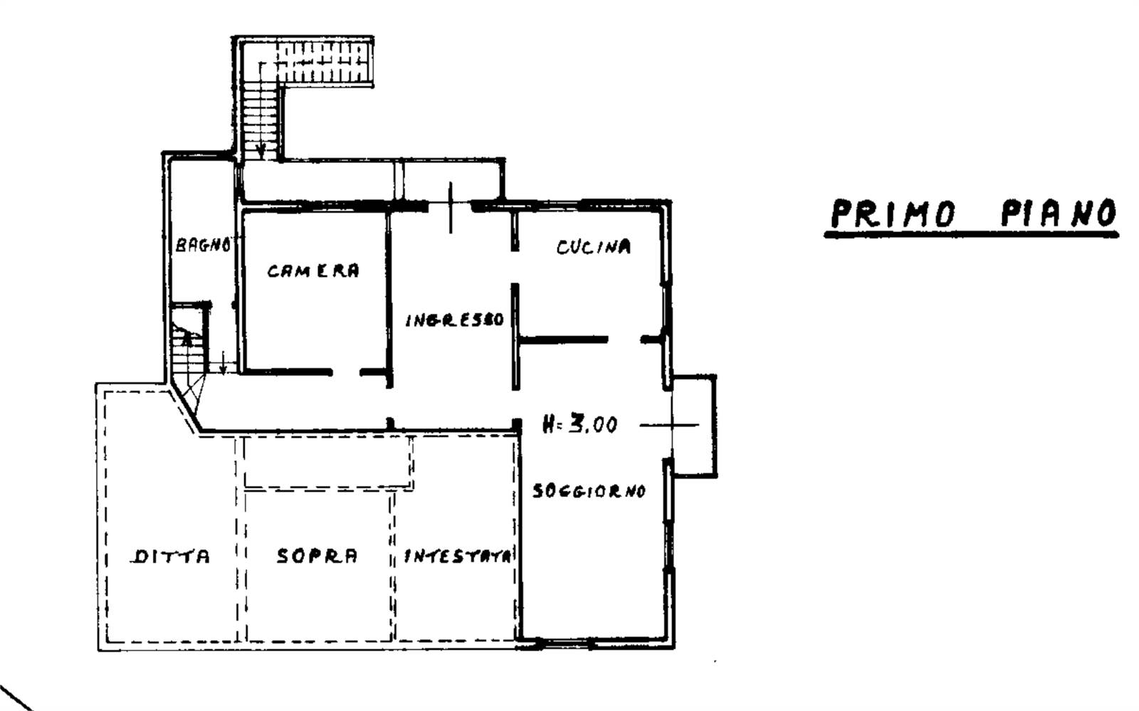
Proponiamo in vendita appartamemento quadrilocale composto da soggiorno, cucina abitabile, disimpegno, una camera da letto, bagno e balcone al piano primo, altre due camere da letto, disimpegno e secondo bagno al piano secondo mansardato.
Completa la soluzione corte esclusiva e ripostigli al piano terra.

Non lasciarti perdere questa occasione, contattaci subito e fissa il tuo appuntamento!

Why Invest in Franciacorta: A Land of Beauty, Prestige, and Opportunity
If you're looking for a place to invest in real estate that combines value, quality of life, and strong growth potential, then Franciacorta is the destination you’ve been searching for.
This stunning area in Lombardy, nestled between Lake Iseo and the historic city of Brescia, lies just a short distance from the iconic Lake Garda—one of Europe’s most beloved travel destinations. A vibrant and strategic location, perfect both for living and for smart property investments.
1. A Region of Extraordinary Beauty
Franciacorta is world-renowned for its vineyards, rolling hills, charming historical villages, and carefully preserved landscapes. It sits at the heart of a territory where every season offers its own magic—just minutes from Lake Iseo and its jewel, Monte Isola, and also close to Lake Garda’s stunning towns like Sirmione, Salò, and Desenzano. This is the perfect setting for those seeking to invest in high-quality properties in an area rich in natural beauty and character.
2. A Globally Recognized Brand
The name Franciacorta is synonymous with excellence. Its traditional-method sparkling wine is known worldwide and has helped position the region as a prestigious and refined destination. This strong brand identity increases the area’s appeal for high-end tourism—and adds real value to real estate investments.
3. Concrete Real Estate Opportunities
Investing in Franciacorta means gaining access to high-quality properties: villas surrounded by nature, renovated farmhouses, modern apartments in quiet, well-serviced settings. Ideal for:
• A second home or primary residence in a prestigious area
• A tourist accommodation (B&B, agriturismo, boutique hotel)
• A rental investment, with growing demand from both Italian and international visitors
4. Close to Everything, Far from the Chaos
Franciacorta enjoys a strategic central location—just minutes from Brescia, close to Lake Iseo, and less than an hour from Lake Garda. The area is well connected to Milan, Bergamo, and Verona via the A4 motorway and local train lines. It’s the perfect balance between peace and convenience.

In Conclusion
Choosing Franciacorta means choosing an investment in a region that offers beauty, elegance, and real opportunity. Whether you want to live here, rent, open a business, or simply diversify your portfolio, this is one of the most promising and refined areas in Northern Italy.real opportunity.

Video

Condividi

Cookie preference